DIZA Consultores presenta exclusiva propiedad de lujo en la prestigiosa zona de Castellana, en el corazón del barrio de Salamanca.
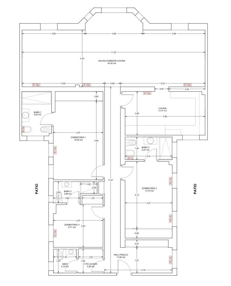
Situado en la tercera planta de un bonito edificio de principios del siglo XX, este piso de 192 metros cuadrados cuenta con un diseño moderno y elegante.
La zona social es el alma de este hogar, con un salón-comedor amplio y luminoso, gracias a sus tres balcones que inundan de luz natural cada rincón.
La cocina semi-independiente, cuenta con electrodomésticos de alta gama, ofreciendo funcionalidad y estilo en cada detalle.
La zona de noche cuenta con tres dormitorios de muy buen tamaño, cada uno con su propio baño completo, lo que garantiza comodidad y privacidad.
Además, cuenta con un práctico cuarto de lavandería y un aseo de cortesía.
Ubicada en una de las zonas más exclusivas de Madrid, el barrio de Salamanca, esta propiedad ofrece la combinación perfecta de lujo, ubicación y comodidad.
Convertimos Sueños en Hogares




