DIZA Consultores les presenta esta exclusiva vivienda situada en la calle Alcalá, en el barrio de Goya, dentro del distrito Salamanca.
Ubicada en una segunda planta exterior de un edificio de 1957 con ascensor, la propiedad destaca por su amplitud y presencia en una de las arterias más representativas y mejor conectadas de la zona.
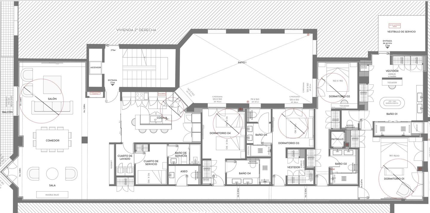
Con 275 m2, la vivienda ha sido reformada con un planteamiento contemporáneo que prioriza la fluidez de espacios y el confort residencial. La zona de día se abre al exterior y conecta con balcón, beneficiándose de su orientación sur, que aporta luminosidad y una agradable entrada de luz natural a lo largo del día. La cocina, completamente equipada, se integra de forma funcional dentro del conjunto.
La zona de noche se compone de cuatro dormitorios y cuatro baños completos, además de un aseo adicional. La vivienda dispone de vestidor, reforzando el carácter residencial y la organización interior. Se entrega totalmente amueblada y lista para entrar a vivir.
Cuenta con calefacción comunitaria y aire acondicionado, garantizando bienestar durante todo el año.
Una propiedad exterior de gran dimensión en el corazón de Goya, ideal para quienes buscan amplitud, luz y representatividad en el Barrio de Salamanca.




