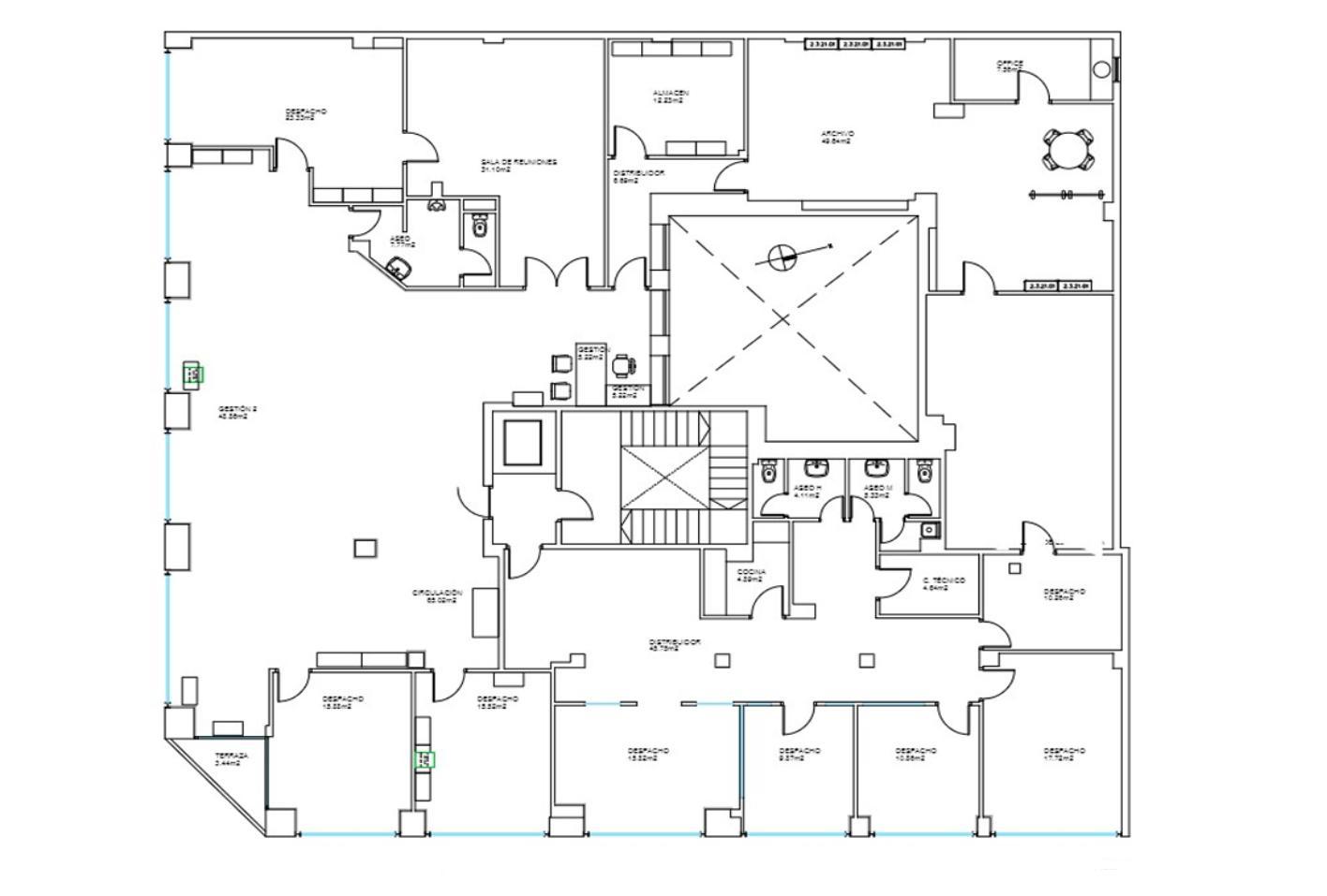
DIZA consultores les presenta amplia oficina con posibilidad de cambio de uso a vivienda, situada en una finca representativa. Con una superficie construida de 426 m², este espacio destaca por su luminosidad y amplitud, gracias a sus grandes ventanales y su excelente orientación sur y oeste, que garantiza luz natural durante todo el día.
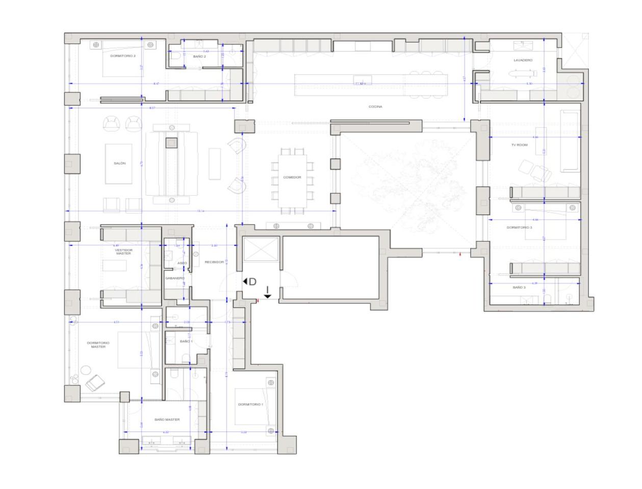
El inmueble ofrece grandes posibilidades de reforma, permitiendo una distribución moderna y funcional. Existe la posibilidad de proyectar una vivienda de alto nivel con cuatro amplios dormitorios, cinco baños, y un gran salón-comedor de concepto abierto, ideal para disfrutar de los espacios diáfanos y la luz.
Gran parte de la superficie es exterior, lo que aporta ventilación cruzada, vistas despejadas y una sensación de amplitud única. Su configuración actual permite una adaptación versátil, tanto para uso residencial como para otros fines representativos o profesionales.
En definitiva, una propiedad singular con un enorme potencial de transformación, perfecta para quienes buscan crear una vivienda exclusiva y luminosa en un espacio de grandes dimensiones
Convertimos Sueños en Hogares




