DIZA Consultores presenta esta exclusiva vivienda ubicada en una finca señorial de 1924, completamente rehabilitada, que conserva el encanto arquitectónico original con todas las comodidades del siglo XXI. Situada en la mejor zona de Castellana en Barrio de Salamanca, esta segunda planta exterior con dos balcones a la calle ofrece una propuesta de lujo, confort y diseño en pleno centro urbano.
Con una cuidada reforma integral, esta vivienda ha sido diseñada para ofrecer una experiencia de vida excepcional.
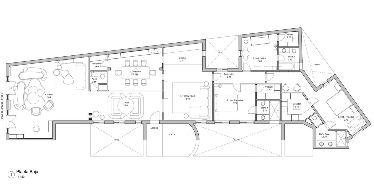
La zona social se articula en torno a un luminoso salón con 2 ambientes, y se complementa con un elegante comedor con capacidad para 10 comensales y una cocina de apoyo, perfecta para celebraciones y encuentros. Cuenta con una impresionante cocina principal, que incluye un acogedor espacio de sofá y televisión, ideal para el día a día
El área de noche se compone de tres dormitorios, todos con baño en suite y vestidor privado, garantizan un nivel de intimidad y sofisticación propios de un hotel de cinco estrellas.
El principal destaca además de su excepcional tamaño por contar con una ventana a un agradable patio con una zona de lectura donde disfrutar la luz y la paz de la finca.
Altos techos, acabados de primera calidad, y una distribución funcional se combinan con la luz natural que fluye a través de los balcones, creando un ambiente cálido y sofisticado a partes iguales.
Cuenta con posibilidad de garaje opcional con tamaño para dos coches por 80.000€, o alquiler de 210€.
Una joya única que reinterpreta el lujo clásico con una visión contemporánea, en una de las zonas más vibrantes y consolidadas de la ciudad.
Una vivienda con historia, pensada para quienes buscan excelencia y estilo.
DIZA Consultores Inmobiliarios.
Inmobiliaria de lujo en Madrid especializada en comprar, vender y alquilar pisos en las zonas premium de Madrid: Barrio de Salamanca, Almagro, Chamartín, Retiro, Pozuelo, Aravaca, Boadilla…
Convertimos Sueños en Hogares




