DIZA Consultores presenta magnífico ático en edificio señorial en la mejor zona de Madrid, listo para reformar con grandes posibilidades.
En la sexta planta de un edificio clásico de mediados del siglo XX se encuentra este piso a reformar de 170 metros cuadrados.
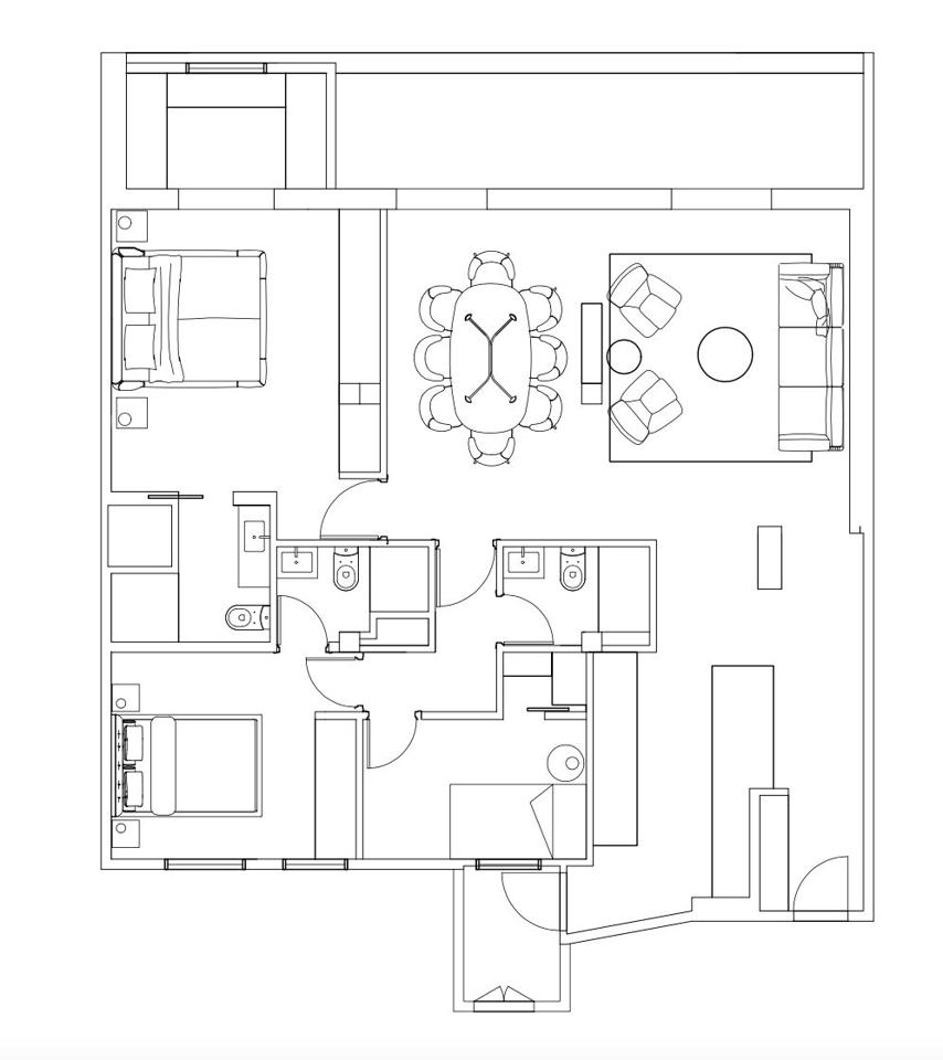
La propuesta de reforma plantea dejar un amplio salón con cocina integrada con la luz como protagonista gracias a sus tres balcones de suelo a techo y orientación oeste.
La zona de descanso se plantea con tres dormitorios, todos de tamaño doble, el principal exterior con acceso a la terraza, dos con cuarto de baño en suite y un tercer cuarto de baño para el último dormitorio y visitas.
La finca está muy cuidada, con zonas comunes rehabilitadas, y dispone de portero físico para mayor seguridad y comodidad. Este piso representa una excelente oportunidad para vivir en un entorno señorial con las mejores prestaciones.
Situado en el barrio de Ibiza, perteneciente al distrito del Retiro, se trata de uno de los más tranquilos de la capital, siendo su principal atractivo la cercanía al Parque del Retiro. Situado en la zona residencial cerca de todos los comercios, colegios, tiendas y restaurantes.
Estaremos encantados de atenderle.
DIZA Consultores Inmobiliarios
Convertimos Sueños en Hogares




