DIZA Consultores les presenta piso recién reformado de lujo, en Goya a un paso del Parque del Retiro.
En la cuarta planta de un edificio representativo construido a mediados del siglo XX, encontramos este piso reformado de 113 metros cuadrados.
La vivienda ha sido completamente rehabilitada por un equipo de arquitectura de reconocido prestigio, tratando de conservar su esencia clásica, con las comodidades del siglo XXI.
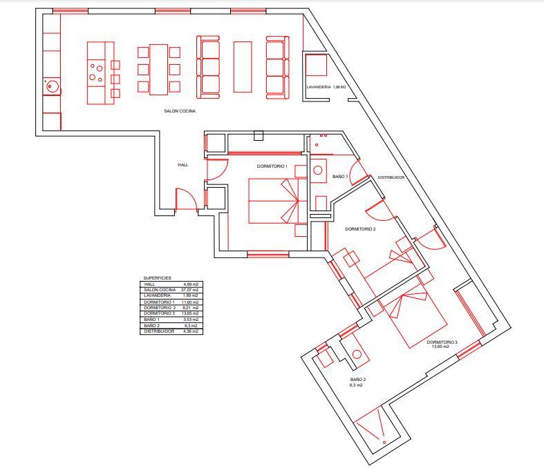
La zona protagonista de la vivienda es su salón-comedor. Aquí está integrada la cocina con isla y electrodomésticos de primera calidad.
La zona de descanso se compone de tres dormitorios dobles, el principal con baño en suite. Todos ellos tienen gran capacidad de almacenaje con armarios de suelo a techo. Además cuenta con un cuarto de baño completo para los dormitorios secundarios y visitas.
La vivienda ha sido rehabilitada por completo con acabados de lujo, con suelo radiante y refrescante. La finca es señorial y dispone de portero físico.
El barrio Salamanca se trata de una de las zonas más lujosas y con mejor calidad de vida de Europa. Gracias a la amplia oferta gastronómica, cultural y comercial, se trata de una formidable zona donde vivir e invertir.
Estaremos encantados de atenderle.
DIZA Consultores Inmobiliarios
Inmobiliaria de lujo en Madrid especializada en comprar, vender y alquilar pisos en las zonas premium de Madrid: Barrio de Salamanca, Almagro, Chamartín, Retiro, Pozuelo, Aravaca, Boadilla.
Convertimos Sueños en Hogares




