DIZA Consultores les presenta piso de diseño con tres dormitorios junto al parque del Retiro, en una de las zonas más tranquilas del Barrio Salamanca, y además, disfruta de una excelente conectividad mediante múltiples líneas de metro y autobús, que facilitan el acceso a todo Madrid.
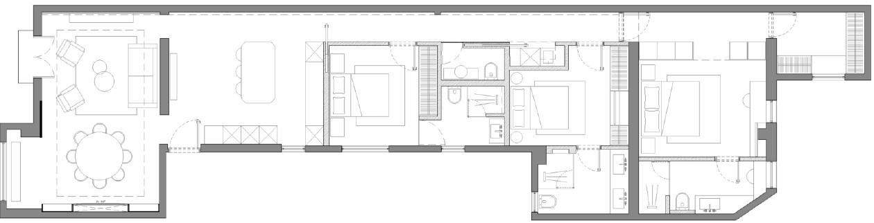
En la primera planta de un edificio construido en el año 1928, se encuentra este luminoso piso de diseño de 167 metros cuadrados.
Se trata de un piso donde se han cuidado todos los detalles, convirtiéndolo en un trofeo en la mejor zona de Madrid.
El salón es la zona protagonista de la vivienda. Se trata de una estancia diáfana, muy luminosa, con la cocina integrada con electrodomésticos de alta gama, bañada de luz natural.
El piso consta de tres dormitorios con baño en suite y aseo de cortesía que sirve para dar servicio al segundo dormitorio y a las visitas siendo la parte más privada de la vivienda orientada al interior, protegida del ruido y preservando la serenidad de sus estancias.
El Barrio Salamanca se trata de una de las zonas más lujosas y con mejor calidad de vida de Europa. Gracias a la amplia oferta gastronómica, cultural y comercial, se trata de una formidable zona donde vivir e invertir. Se encuentra muy cerca del parque del Retiro y además, disfruta de una excelente conectividad mediante múltiples líneas de metro y autobús, que facilitan el acceso a todo Madrid.
Estaremos encantados de atenderle.
DIZA Consultores Inmobiliarios
Inmobiliaria de lujo en Madrid especializada en comprar, vender y alquilar pisos en las zonas premium de Madrid: Barrio de Salamanca, Almagro, Chamartín, Retiro, Pozuelo, Aravaca, Boadilla.
Convertimos Sueños en Hogares




