DIZA consultores les presenta este maravilloso piso de 323m2 en una zona inmejorable.
En una finca de 1947 se encuentra una cuarta planta exterior con muchísima luz natural.
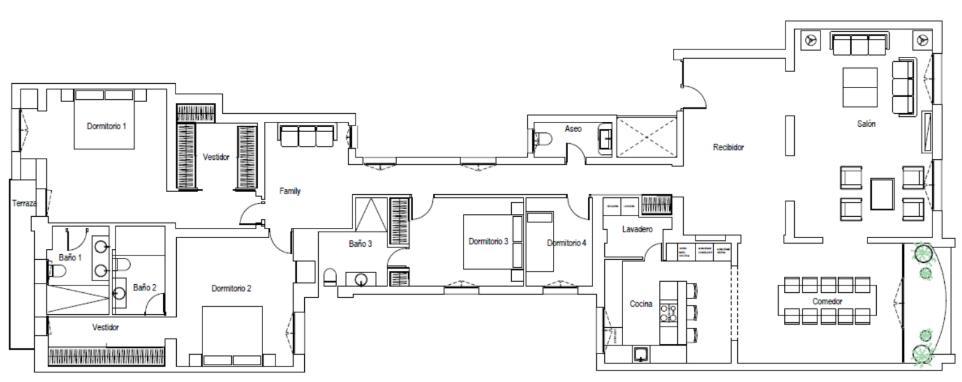
Contamos con un buen hall recibidor, dando paso a un amplio salón comedor muy espacioso, también una cocina de buen tamaño con zona de lavandería.
En la zona de noche contamos con tres amplios dormitorios con baño en suite, el principal con vestidor, contando con muy buenas calidades, también contamos con un despacho que podría actuar como cuarto dormitorio, también contamos con una amplia terraza.
La finca cuenta con portero físico y trastero.
Estaremos encantados de atenderle.
DIZA Consultores Inmobiliarios.
Inmobiliaria de lujo en Madrid especializada en comprar, vender y alquilar pisos en las zonas premium de Madrid: Barrio de Salamanca, Almagro, Chamartín, Retiro, Pozuelo, Aravaca, Boadilla.
Convertimos Sueños en Hogares




