DIZA Consultores Inmobiliarios les presenta este exclusivo proyecto llave en mano, situado en una de las calles más representativas del barrio de Salamanca.
La vivienda, ubicada en una cuarta planta exterior de una finca representativa, destaca por su reforma integral de alta gama, lista para entrar a vivir. El edificio cuenta con conserje, dos ascensores, trastero y plaza de garaje con acceso directo en la misma finca.
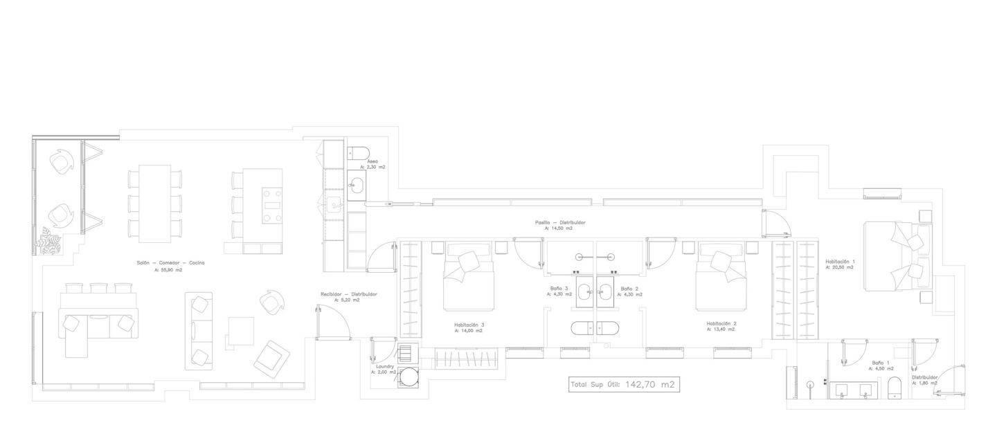
Distribuida en 278 m² construidos, la propiedad se compone de un hall de entrada, un amplio salón-comedor diáfano con cocina integrada, una gran despensa, cuarto de lavado, tres dormitorios dobles, tres baños completos, todos ellos en suite ademas de un aseo de cortesía.
Los materiales de primera calidad, las soluciones técnicas cuidadosamente seleccionadas y el sistema de climatización garantizan un equilibrio perfecto entre estética, funcionalidad, eficiencia energética y confort durante todo el año.
Estaremos encantados de atenderle.
DIZA Consultores Inmobiliarios.
Inmobiliaria de lujo en Madrid especializada en comprar, vender y alquilar pisos en las zonas premium de Madrid: Barrio de Salamanca, Almagro, Chamartín, Retiro, Pozuelo, Aravaca, Boadilla.
Convertimos Sueños en Hogares
Convertimos Sueños en Hogares




