DIZA Consultores les presenta excepcional vivienda de obra nueva con jardín privado y plaza de garaje, en la exclusiva zona residencial de Doctor Arce.
Vivienda independiente, encontramos este luminoso chalet de 321 metros cuadrados divididos en tres plantas. Se trata de una vivienda en la que se ha cuidado hasta el mínimo detalle, con calificación energética A, con calefacción por suelo radiante y refrescante y otros muchos más.
Según se entra a la vivienda, encontramos el hall de entrada que da acceso a un amplio salón comedor cocina, con unos grandes ventanales que dan acceso a dos terrazas. En esta planta también se encuentra un aseo de cortesía.
Un jardín exterior incomparable de 321metros cuadrados, con espacio exterior para disfrutar todo el año, y piscina.
Subiendo las escaleras, de paso cómodo, se llega a la segunda planta. Esta se compone del dormitorio principal con baño en suite y vestidor. La planta cuenta con una terraza maravillosa con vistas ajardinadas. Debido a sus grandes ventanales, altura y orientación goza de una magnífica luz durante todo el día.
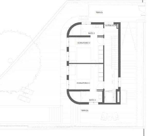
Una segunda planta con dormitorios ambos con baño en suite y cada uno con acceso privado a una terraza.
En el precio se incluye una plaza de garaje.
Situado en la zona residencial de la Avenida del Doctora Arce en El Viso, se trata una de las zonas más exclusivas y tranquilas de Madrid, rodeado de embajadas, zonas verdes y colegios.
Inmobiliaria de lujo en Madrid especializada en comprar, vender y alquilar pisos en las zonas premium de Madrid: Barrio de Salamanca, Almagro, Chamartín, Retiro, Pozuelo, Aravaca, Boadilla.
Convertimos Sueños en Hogares




