DIZA Consultores les presenta apartamento listo para reformar, en la mejor zona de Castellana, a un paso del IE.
En la tercera planta de un edificio representativo construido a principios del siglo XX, encontramos este piso de 109 metros cuadrados y techos altos.
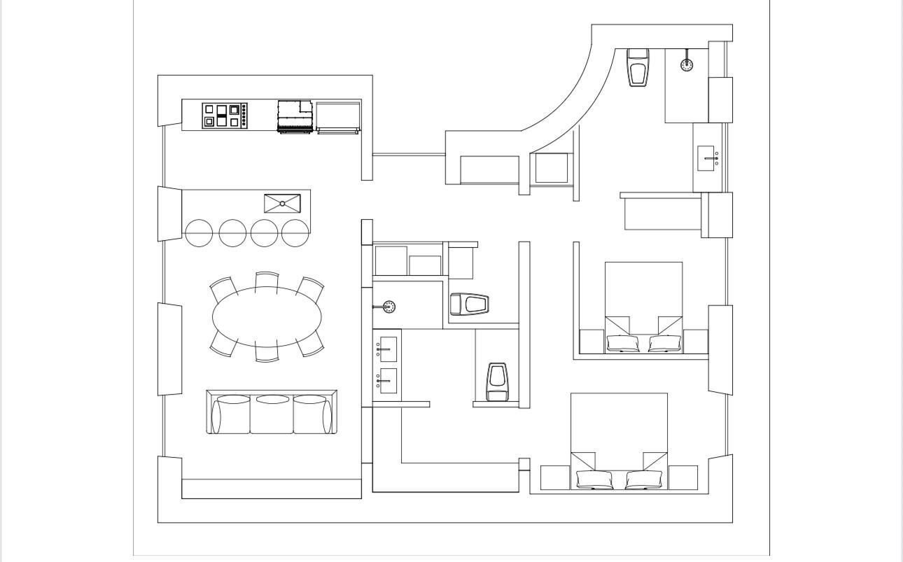
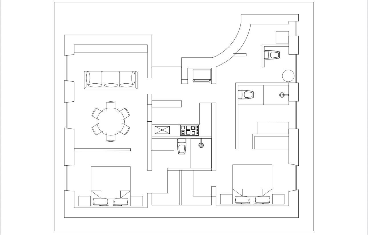
La vivienda ahora mismo se encuentra completamente demolida y tiene unas grandes posibilidades de reforma.
Se plantea dejar una distribución con un salón diáfano con la cocina integrada, dos dos dormitorios dobles con armarios empotrados, el principal con cuarto de baño y otro para el secundario y visitas.
El barrio Salamanca se trata de una de las zonas más lujosas y con mejor calidad de vida de Europa. Gracias a la amplia oferta gastronómica, cultural y comercial, se trata de una formidable zona donde vivir e invertir.
Estaremos encantados de atenderle.
DIZA Consultores Inmobiliarios.
Inmobiliaria de lujo en Madrid especializada en comprar, vender y alquilar pisos en las zonas premium de Madrid: Barrio de Salamanca, Almagro, Chamartín, Retiro, Pozuelo, Aravaca, Boadilla.
Convertimos Sueños en Hogares.




