DIZA Consultores les presenta piso muy luminoso en Goya, a dos manzanas del Parque del Retiro.
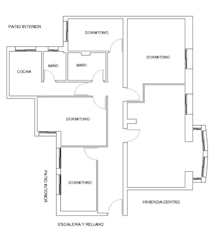
En la tercera planta de un edificio construido en 1930, encontramos este luminoso piso de techos altos y 113 metros cuadrados, con tres huecos a la calle.
La zona social se compone de salón, comedor con un gran ventanal y mirador con orientación de mañana y vistas despejadas al ser una calle ancha.
La zona de descanso está compuesta por tres dormitorios dobles, el principal exterior a la calle, dos cuartos de baño y una estancia que se utiliza como vestidor y lavandería.
La ubicación del inmueble es inmejorable, se encuentra a los pies de los mejores restaurantes de la capital y a un paso del Parque del Retiro.
El barrio Salamanca se trata de una de las zonas más lujosas y con mejor calidad de vida de Europa. Gracias a la amplia oferta gastronómica, cultural y comercial, se trata de una formidable zona donde vivir e invertir.
Inmobiliaria de lujo en Madrid especializada en comprar, vender y alquilar pisos en las zonas premium de Madrid: Barrio de Salamanca, Almagro, Chamartín, Retiro, Pozuelo, Aravaca, Boadilla.
Convertimos Sueños en Hogares




