DIZA Consultores presenta ático en edificio muy representativo de principios del siglo XX, en la mejor zona de Recoletos.
En la sexta planta de un edificio clásico con fachada preciosa, encontramos este ático de techos altos con 242 metros cuadrados, de los cuales 48 son de la estupenda terraza de forma rectangular que da a la calle.
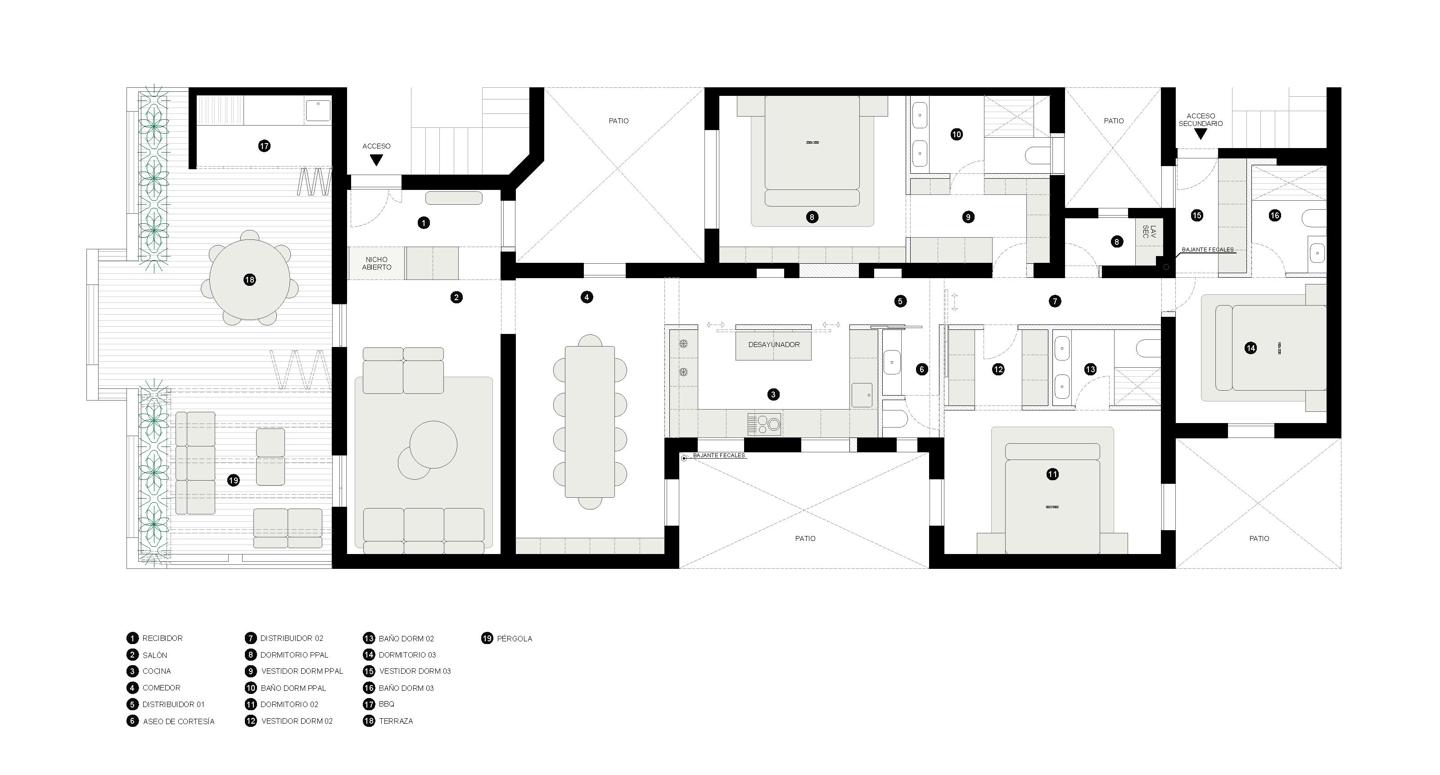
La propuesta de reforma plantea dejar una gran zona de recibo con salón abierto a la terraza, comedor conectado y la cocina semi independiente, una distribución moderna y funcional.
La terraza es grande y se plantea dejar una zona de solárium, una de comedor y una cocina exterior.
La zona de noche tiene acceso tras la puerta que lo divide desde el pasillo. Se plantean tres amplias suites de tamaño doble con mucha luz.
Los grandes y luminosos espacios de esta vivienda, permiten hacer volar la imaginación, convirtiéndola en una vivienda moderna de aire clásico en la mejor zona de la capital.
La finca cuenta con portero físico e impresionante portal clásico. La propiedad incluye un trastero.
El Barrio Salamanca se trata de una de las zonas más lujosas y con mejor calidad de vida de Europa. Gracias a la amplia oferta gastronómica, cultural y comercial, se trata de una formidable zona donde vivir e invertir.
Estaremos encantados de atenderle.
DIZA Consultores Inmobiliarios
Inmobiliaria de lujo en Madrid especializada en comprar, vender y alquilar pisos en las zonas premium de Madrid: Barrio de Salamanca, Almagro, Chamartín, Retiro, Pozuelo, Aravaca, Boadilla.
Convertimos Sueños en Hogares




