DIZA Consultores presenta vivienda reformada de lujo por estudio de arquitectura de reconocido prestigio en María de Molina, con plaza de garaje en el edificio.
En la cuarta planta de un edificio representativo construido a mediados del siglo XX siendo el único piso por planta, encontramos este luminoso piso de 304m2.
Se trata de un edificio muy familiar y exclusivo con tan solo ocho vecinos.
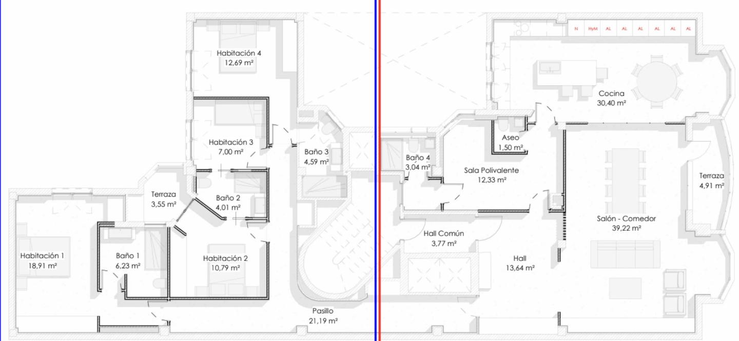
El salón es amplio y muy luminoso gracias a los tres grandes ventanales con vistas despejadas. Se trata de un gran espacio abierto con tres zonas diferenciadas. De derecha a izquierda: comedor con capacidad para diez personas, zona de estar con gran sofá y zona de estar frente al despacho. Este está diferenciado del área social con una pared de cristal y junto al despacho, el aseo de visitas. En caso de querer otro dormitorio, se podría convertir fácilmente con baño en suite.
La cocina, se encuentra junto al área social, integrada visualmente con puertas correderas de cristal. Es grande con comedor de diario y está completamente equipada con electrodomésticos de alta calidad. Además hay una zona de lavandería independiente con tendedero.
La zona de descanso se compone de cuatro dormitorios, el principal con un gran vestidor y baño en suite.
Toda la vivienda posee una luz envidiable debido a los amplios ventanales y altura.
La finca cuenta con portero físico que vive en la finca y calefacción central. Además la vivienda incluye el derecho de uso a una plaza de garaje y trastero.
El Barrio Salamanca se trata de una de las zonas más lujosas y con mejor calidad de vida de Europa. Gracias a la amplia oferta gastronómica, cultural y comercial, se trata de una formidable zona donde vivir e invertir.
Estaremos encantados de atenderle.
DIZA Consultores Inmobiliarios
Inmobiliaria de lujo en Madrid especializada en comprar, vender y alquilar pisos en las zonas premium de Madrid: Barrio de Salamanca, Almagro, Chamartín, Retiro, Pozuelo, Aravaca, Boadilla.
Convertimos Sueños en Hogares




