DIZA Consultores le presenta este piso exterior con 5 huecos a la calle.
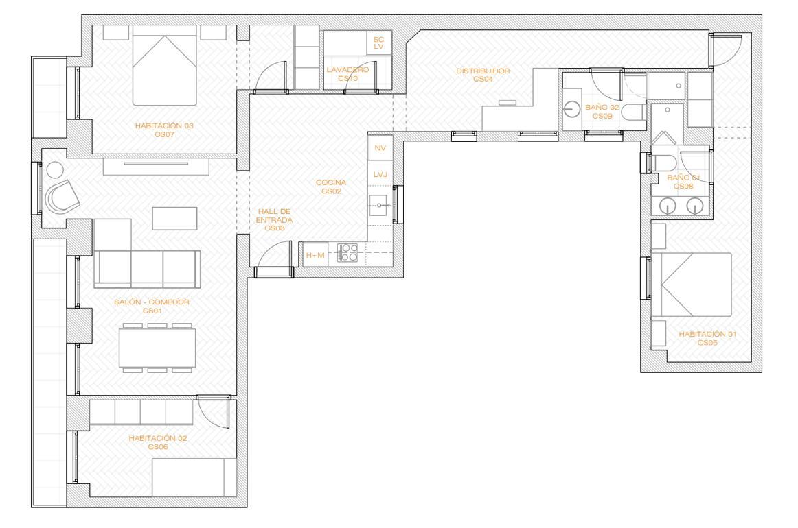
Esta vivienda completamente reformada y a estrenar, con una superficie de 126 m² construidos, distribuidos en 3 dormitorios (el dormitorio principal en suite) y dos dormitorios exteriores que comparten un cuarto de baño.
El salon comedor exterior también con 3 huecos a la calle tiene un luz natural que hace que el espacio sea muy agradable. la cocina esta completamente amueblada equipada.
Tiene orientación Este lo que proporciona luz por la mañana.
La propiedad también incluye un cuarto de lavanderia.
Calefacción de gas natural individualizada, armarios empotrados.
Edificio con ascensor.
Convertimos Sueños en Hogares




