En una de la primera planta, nos encontramos este exclusivo piso 192 metros cuadrados y una plaza de parking.
Actualmente el piso se encuentra para reformar.
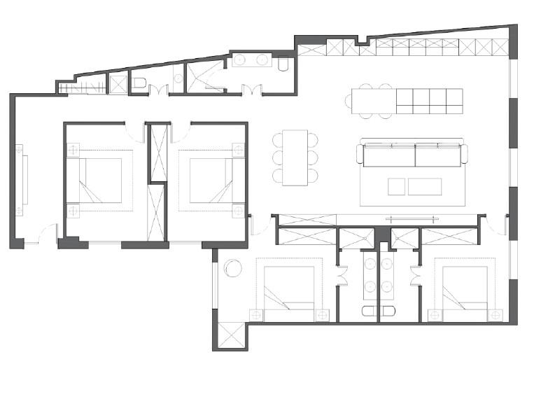
Una propuesta sería el salón-comedor quedaría muy amplio y luminoso y una cocina independiente para mayor comodidad. Cuatro dormitorios, tres de ellos con baño en suite y aseo de cortesía.
La finca dispone de servicio de conserjería.
Situado en la zona residencial cerca de todos los comercios, colegios, tiendas, restaurantes y museos del barrio de Salamanca y a menos de 1 minuto andando del Retiro, se trata de una excelente vivienda para vivir o invertir.
Situado en el barrio de Ibiza, perteneciente al distrito del Retiro, se trata de uno de los más tranquilos de la capital, siendo su principal atractivo la cercanía al Parque del Retiro. Situado en la zona residencial cerca de todos los comercios, colegios, tiendas y restaurantes.
Estaremos encantados de atenderle.
DIZA Consultores Inmobiliarios
Inmobiliaria de lujo en Madrid especializada en comprar, vender y alquilar pisos en las zonas premium de Madrid: Barrio de Salamanca, Almagro, Chamartín, Retiro, Pozuelo, Aravaca, Boadilla.
Convertimos Sueños en Hogares




