DIZA Consultores presenta espectacular ático residencial en una octava planta de 290 m², completamente reformado.
Se encuentra en un edificio construido en 1955, la vivienda destaca por la luz natural ya que es todo exterior y su excelente reforma. Un hogar donde la arquitectura contemporánea convive con la esencia clásica de la ciudad, ofreciendo un estilo de vida exclusivo en uno de sus enclaves más privilegiados.
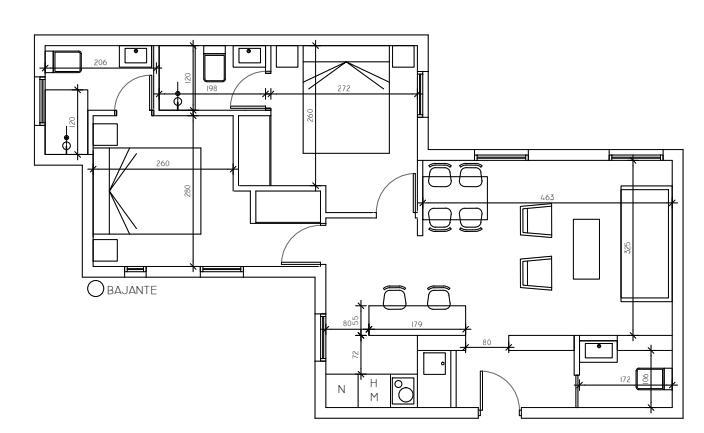
Al entrar nos recibe la zona social de la vivienda que se compone de un salón amplio y acogedor, distribuido en varios ambientes —comedor, zona de estar y un espacio polivalente ideal como despacho o rincón de lectura—. La cocina, con isla central y un interiorismo cuidadosamente proyectado, se presenta como un espacio funcional y estético, mientras que los grandes ventanales de toda la planta aportan una luminosidad excepcional y potencian la sensación de amplitud.
En la planta superior, la protagonista es la terraza, un espacio extraordinario que incorpora una cocina cerrada de diseño, zona de comedor, área chill out y piscina, creando un entorno perfecto para disfrutar del aire libre, del skyline madrileño y de los atardeceres sobre la ciudad.
La zona privada alberga dos dormitorios en suite, concebidos para ofrecer privacidad y comodidad. El dormitorio principal destaca por su amplio vestidor, mientras que el segundo dormitorio mantiene la misma atención al detalle y al confort que caracteriza toda la vivienda.
Esta planta se completa con una zona de lavandería y un aseo de cortesía.
El edificio dispone de conserjería y seguridad de última generación, y la vivienda incluye trastero y una plaza de garaje amplia y cómoda. Cada espacio ha sido diseñado para equilibrar funcionalidad y elegancia, con una estética contemporánea que maximiza la luz natural y la amplitud.
La ubicación es otro de sus grandes atractivos: en pleno centro de Madrid, rodeado de boutiques de prestigio, restaurantes de referencia, teatros y espacios culturales, y a pocos pasos del Parque del Retiro. Un enclave donde la energía urbana convive con la serenidad de los espacios abiertos, creando un entorno perfecto para quienes buscan un hogar con alma en una de las zonas más exclusivas y vibrantes de la ciudad.
Convertimos Sueños en Hogares




