DIZA Consultores les presenta esta magnífica vivienda ubicada en una de las zonas mejor conectadas y más demandadas del Barrio de Salamanca.
La vivienda ha sido recientemente reformada, concebida para quienes buscan funcionalidad, calma y un espacio privado difícil de encontrar en la zona.
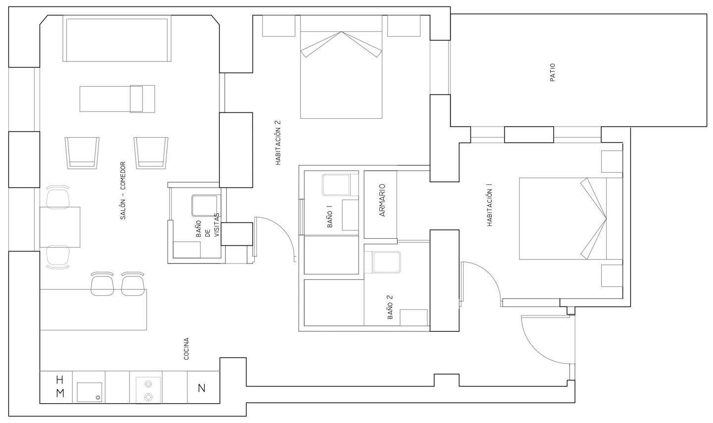
El piso ofrece una amplia zona social donde salón, comedor y cocina conviven en un mismo ambiente abierto, creando un espacio versátil, luminoso y perfecto para disfrutar del día a día. Junto a esta área se encuentra un baño de cortesía, ideal para invitados.
La vivienda dispone de dos dormitorios, ambos muy agradables. El dormitorio principal destaca por su acceso directo al patio privado. El segundo dormitorio se sitúa junto al baño completo, generando independencia y practicidad en la distribución.
Un piso con una organización moderna, pensado al detalle y con un valor diferencial único: un patio exterior que convierte la vivienda en un refugio dentro de la ciudad.
Perfecto para quien busca tranquilidad y una excelente ubicación.
Actualmente la vivienda se encuentra alquilada hasta el 7 de enero de 2026 en 2.800€
Convertimos Sueños en Hogares




