DIZA Consultores les presenta excepcional vivienda de obra nueva con jardín privado y plaza de garaje, en la exclusiva zona residencial de Doctor Arce.
Vivienda dúplex, encontramos este luminoso piso de 198 metros cuadrados divididos en dos plantas. Se trata de una vivienda en la que se ha cuidado hasta el mínimo detalle, con calificación energética A, con calefacción por suelo radiante y refrescante y otros muchos más.
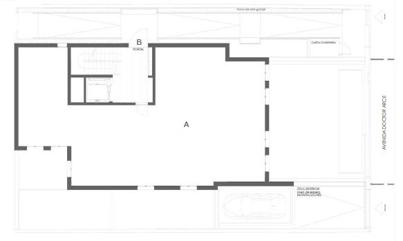
Según se entra a la vivienda, encontramos el hall de entrada que da acceso a un amplio salón comedor cocina, con unos grandes ventanales que dan a un jardín privado. Una zona exterior incomparable de más de 36 metros cuadrados, con espacio exterior para disfrutar todo el año, y piscina. En esta planta también se encuentra un aseo de cortesía.
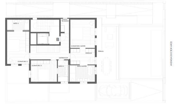
Subiendo las escaleras, de paso cómodo, se llega a la segunda planta. Esta se compone de tres amplios dormitorios, todos ellos con baño en suite. La planta cuenta con una terraza maravillosa con vistas ajardinadas. Debido a sus grandes ventanales, altura y orientación goza de una magnífica luz durante todo el día.
En el precio se incluye una plaza de garaje.
Situado en la zona residencial de la Avenida del Doctora Arce en El Viso, se trata una de las zonas más exclusivas y tranquilas de Madrid, rodeado de embajadas, zonas verdes y colegios.
Inmobiliaria de lujo en Madrid especializada en comprar, vender y alquilar pisos en las zonas premium de Madrid: Barrio de Salamanca, Almagro, Chamartín, Retiro, Pozuelo, Aravaca, Boadilla.
Convertimos Sueños en HogaresConvertimos Sueños en Hogares


