DIZA Consultores les presenta este magnífico inmueble situado en la tercera planta de un edificio clásico del Barrio Salamanca.
El área social goza de muchísima luz gracias a sus dos balcones exteriores a la calle y lo tenemos dividido en tres ambientes, salón, comedor y despacho. La cocina es independiente y completamente equipada.
La zona de descanso consta de dos dormitorios de buen tamaño, el principal con cuarto de baño en suite, adicionalmente tenemos otro baño completo para dar servicio al dormitorio secundario y a las visitas.
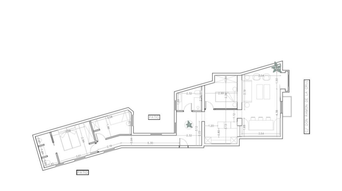
La vivienda se encuentra lista para entrar a vivir, pero hay un proyecto de reforma integral, valorado en 70.863€, con altísimas calidades y dejando dos posibles distribuciones de tres dormitorios, planteadas en los planos que puede observar.
Ubicado en el Barrio Salamanca, este piso está rodeado de una amplia variedad de servicios, tiendas, restaurantes y conexiones de transporte público, ofreciendo comodidad y accesibilidad.
DIZA Consultores Inmobiliarios
Inmobiliaria de lujo en Madrid especializada en comprar, vender y alquilar pisos en las zonas premium de Madrid: Barrio de Salamanca, Almagro, Chamartín, Retiro, Pozuelo, Aravaca, Boadilla…
Convertimos Sueños en Hogares




