DIZA presenta amplia vivienda situada en pleno corazón del barrio de Salamanca, uno de los más elegantes y cotizados de Madrid, este piso ofrece una combinación inmejorable de ubicación, estilo de vida y conectividad.
A muy pocos pases se encuentran vías emblemáticas como Serrano, Príncipe de Vergara y Ortega y Gasset, ejes comerciales de alto nivel con boutiques de lujo, restaurantes de referencia y firmas internacionales. La zona también destaca por su cercanía a prestigiosos centros médicos e instituciones educativas.
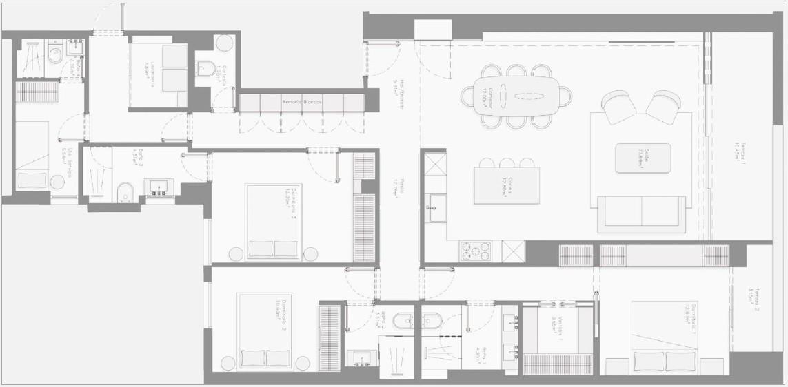
Se trata de un piso luminoso y muy funcional, ideal tanto para familias como para quienes buscan un hogar versátil en una ubicación privilegiada. Con una superficie de 193 metros cuadrados y una distribución muy equilibrada, la vivienda se compone de cuatro dormitorios con baño incluido, destacando una terraza interna en el área del salón con vistas a la calle de Diego de León ,el dormitorio principal también cuenta con una pequeña terraza ofreciendo un espacio privado, cómodo y elegante.
El piso cuenta con aseo de cortesía , lavandería y mucho armario de guardado
Convertimos Sueños en Hogares




