clusiva vivienda reformada en el prestigioso barrio de Justicia
DIZA Consultores les presenta esta propiedad única y completamente reformada en el codiciado barrio de Justicia, una de las zonas más exclusivas y solicitadas de Madrid.
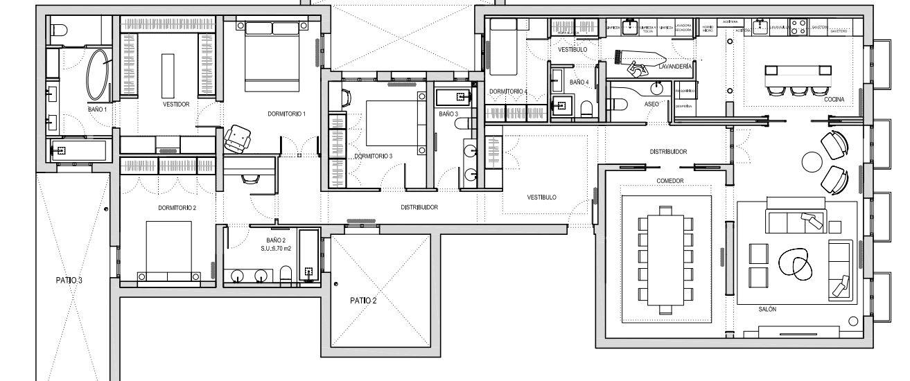
Con una superficie de 251 m², la vivienda se sitúa en la tercera planta de un edificio emblemático, combinando el encanto clásico con un diseño interior contemporáneo y funcional.
En la zona social, destaca un amplio y luminoso salón, ideal para crear diferentes ambientes de descanso y ocio. La cocina, totalmente equipada con electrodomésticos de alta gama, ofrece un espacio práctico y moderno, perfecto para el día a día. Además, dispone de un baño de cortesía junto al área principal.
La zona de descanso se compone de tres amplios dormitorios, todos con baño en suite. El dormitorio principal incluye un gran vestidor, mientras que los restantes cuentan con armarios empotrados de suelo a techo, ofreciendo una excelente capacidad de almacenaje.
La vivienda se completa con una habitación de servicio con su propio baño, ideal para personal de apoyo o para destinar a despacho o zona de invitados.
Esta propiedad representa una magnífica oportunidad para disfrutar de un piso de lujo listo para entrar a vivir, en una ubicación inmejorable en el corazón de Madrid.
El barrio de Justicia se distingue por su ambiente cosmopolita y sofisticado. Sus elegantes edificios, boutiques exclusivas, restaurantes de moda y variada oferta cultural convierten esta zona en un enclave único, con un encanto que recuerda a los barrios más distinguidos de París.
Estaremos encantados de atenderle.
DIZA Consultores Inmobiliarios
Inmobiliaria de lujo en Madrid especializada en la compraventa y alquiler de viviendas en las zonas más exclusivas de la ciudad: Barrio de Salamanca, Almagro, Chamartín, Retiro, Pozuelo, Aravaca y Boadilla del Monte.
Convertimos Sueños en Hogares




