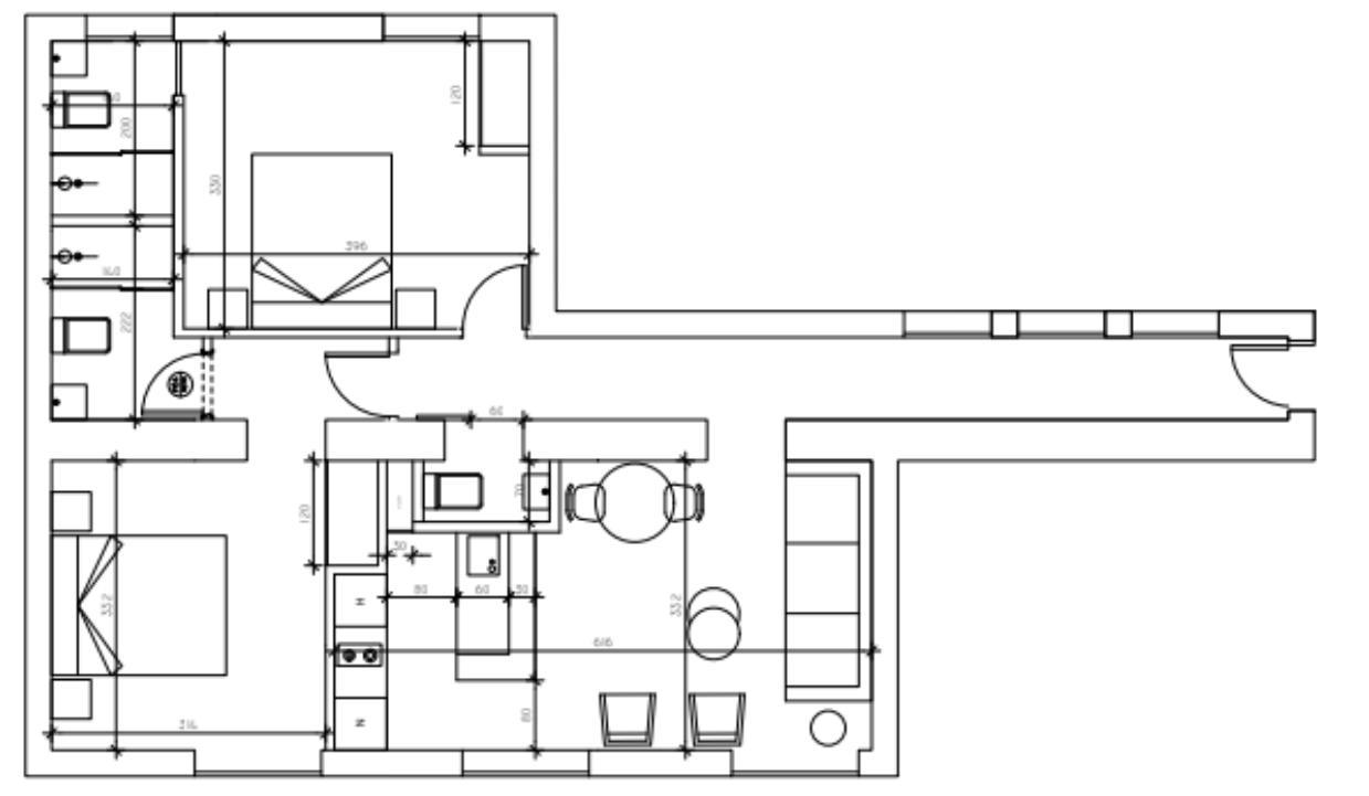
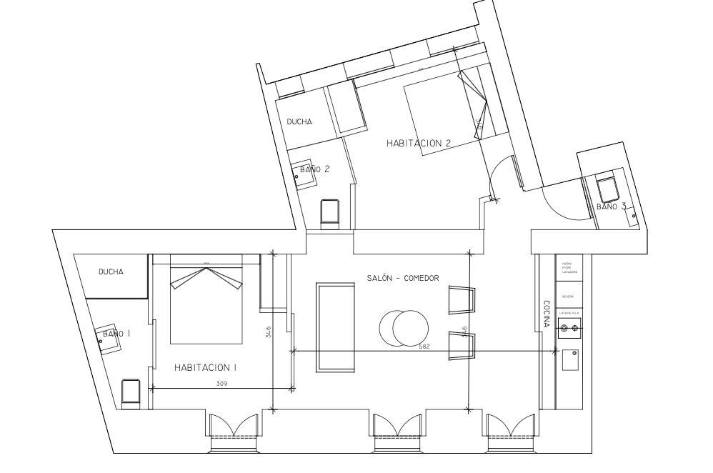
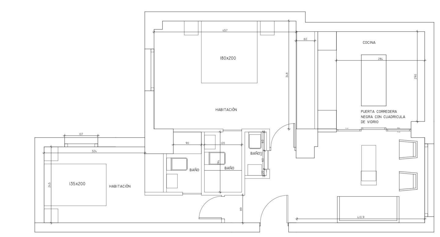
DIZA Consultores presenta este encantador piso en la vibrante zona de Chueca-Justicia, en pleno corazón del distrito de Justicia. Con una superficie de 81 metros cuadrados, esta vivienda ofrece un espacio cómodo y funcional para disfrutar de la vida urbana. Cuenta con dos dormitorios y dos baños, ideales para familias o parejas que buscan comodidad y privacidad. Construido en 1910, el inmueble combina el encanto de la arquitectura clásica con las comodidades modernas. Situado en una ubicación privilegiada, rodeado de una amplia oferta cultural, gastronómica y de ocio, este piso es una oportunidad única para vivir en uno de los barrios más dinámicos de Madrid.
Convertimos Sueños en Hogares




