Convertimos Sueños en Hogares
- compra
REF: DS-P04016
Características del inmueble
- PLANTA: 1
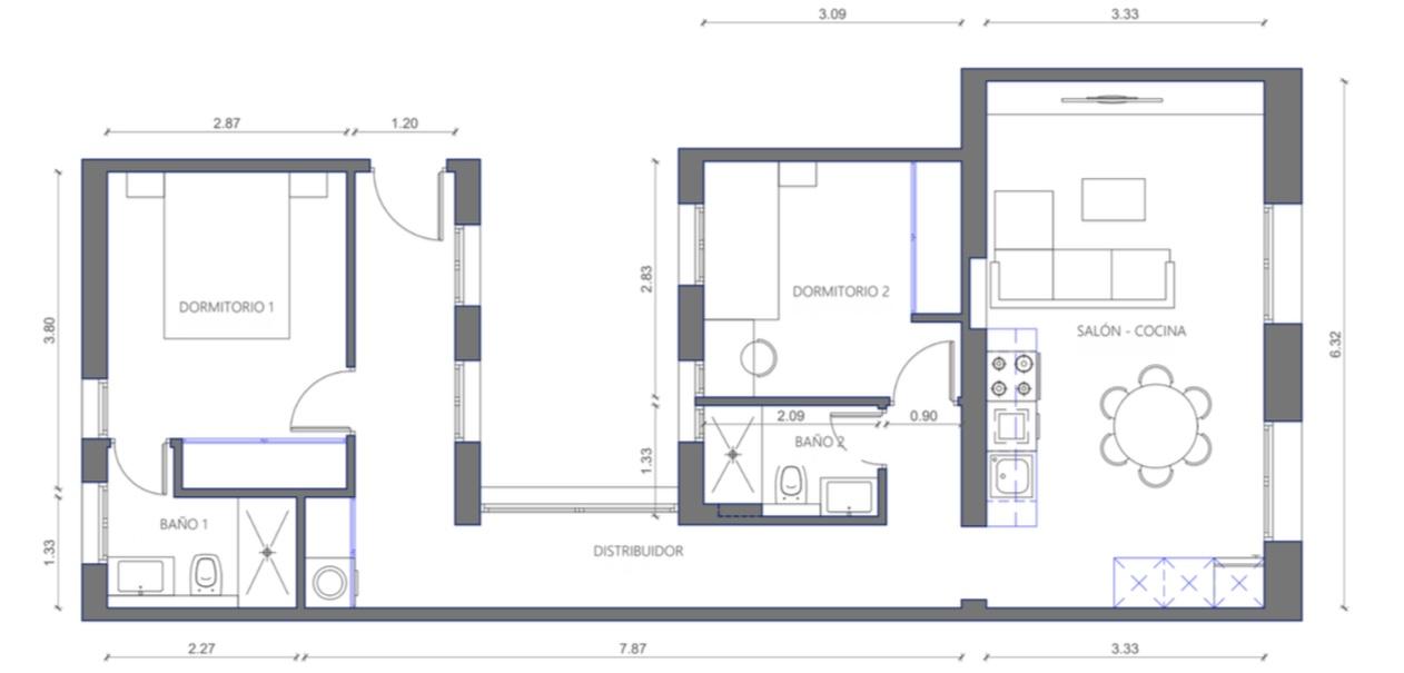
- SUPERFICIE: 79 M²
Vídeo
Certificado energético
- CER.CONSUMO ENERGÉTICO: En trámite
- CER.EMISIÓN ENERGÉTICO: En trámite
Localización del inmueble
- Contáctanos
EL ARTE DE VENDER O ALQUILAR UNA PROPIEDAD EN MADRID
Vende o alquila tu inmueble con nosotros
Expertos en el sector inmobiliario de lujo desde 1998, especializados en la gestión de inmuebles, patrimonios e inversiones inmobiliarias en las zonas premium de Madrid.
Inmuebles relacionados

Ampliar foto
Reducir foto