img-destacada
REF: DS-P55021

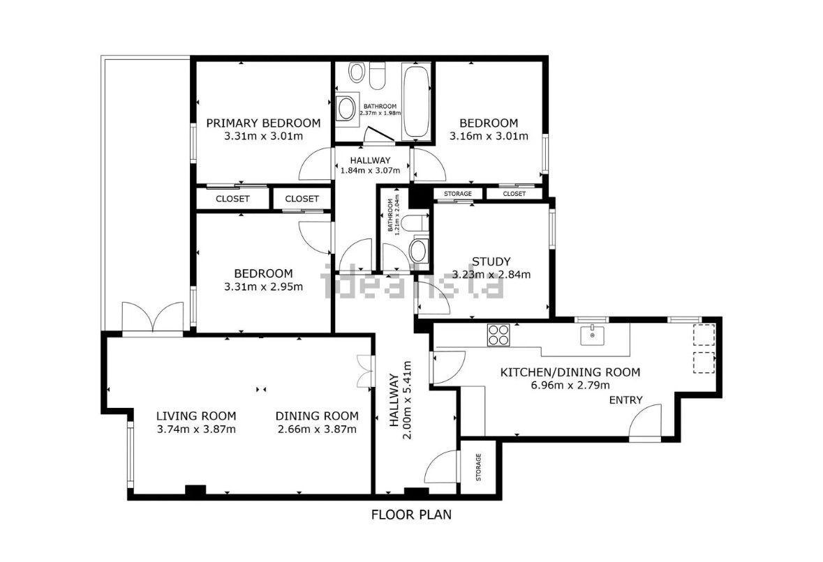
Piso a reformar en Jeronimos

  • 163 M²
  • 3 HABITACIONES
  • 3 BAÑOS
  • 5 PLANTA, Exterior

Exclusiva vivienda con terraza y vistas al Retiro

Magnífica vivienda situada en una quinta planta, con una superficie de 155 m² y una atractiva terraza de 8 m² con vistas despejadas al Parque del Retiro, un privilegio difícil de encontrar. La propiedad destaca por su excelente luminosidad, amplitud y grandes posibilidades de redistribución, ofreciendo el lienzo perfecto para diseñar una vivienda a medida.

El inmueble se presenta para reformar, lo que permite adaptar cada espacio a las necesidades y el estilo del futuro propietario, maximizando su potencial en una de las ubicaciones más cotizadas de Madrid. Incluye plaza de garaje, un valor añadido imprescindible en el entorno.

Una oportunidad única para crear una residencia exclusiva en un enclave incomparable, combinando vistas, altura, amplitud y ubicación.

La ubicación de la propiedad es fantástica, a los pies de los mejores museos de Madrid y el Parque del Retiro.

El barrio de los Jerónimos se trata del más elegante y señorial de Madrid, siendo algunos de sus atractivos la tranquilidad que se respira en la zona y la cercanía al Parque del Retiro, al Museo del Prado o al Jardín Botánico.

DIZA Consultores Inmobiliarios.

Inmobiliaria de lujo en Madrid especializada en comprar, vender y alquilar pisos en las zonas premium de Madrid: Barrio de Salamanca, Almagro, Chamartín, Retiro, Pozuelo, Aravaca, Boadilla.

Convertimos Sueños en Hogares

Vídeo

Certificado energético

  • CER.CONSUMO ENERGÉTICO: E
  • CER.EMISIÓN ENERGÉTICO: E

Localización del inmueble

EL ARTE DE VENDER O ALQUILAR UNA PROPIEDAD EN MADRID
Vende o alquila tu inmueble con nosotros
Expertos en el sector inmobiliario de lujo desde 1998, especializados en la gestión de inmuebles, patrimonios e inversiones inmobiliarias en las zonas premium de Madrid.

¿DÓNDE ESTAMOS?

Madrid

Estamos ubicados en la Puerta de Alcalá

¿DÓNDE ESTAMOS?

Madrid

Estamos ubicados junto a la Puerta de Alcalá. 

Piso a reformar en Jeronimos