Vivienda ubicada en el corazón del exclusivo barrio de Salamanca, en la prestigiosa calle Calle de Claudio Coello, en una finca clásica con portal señorial.
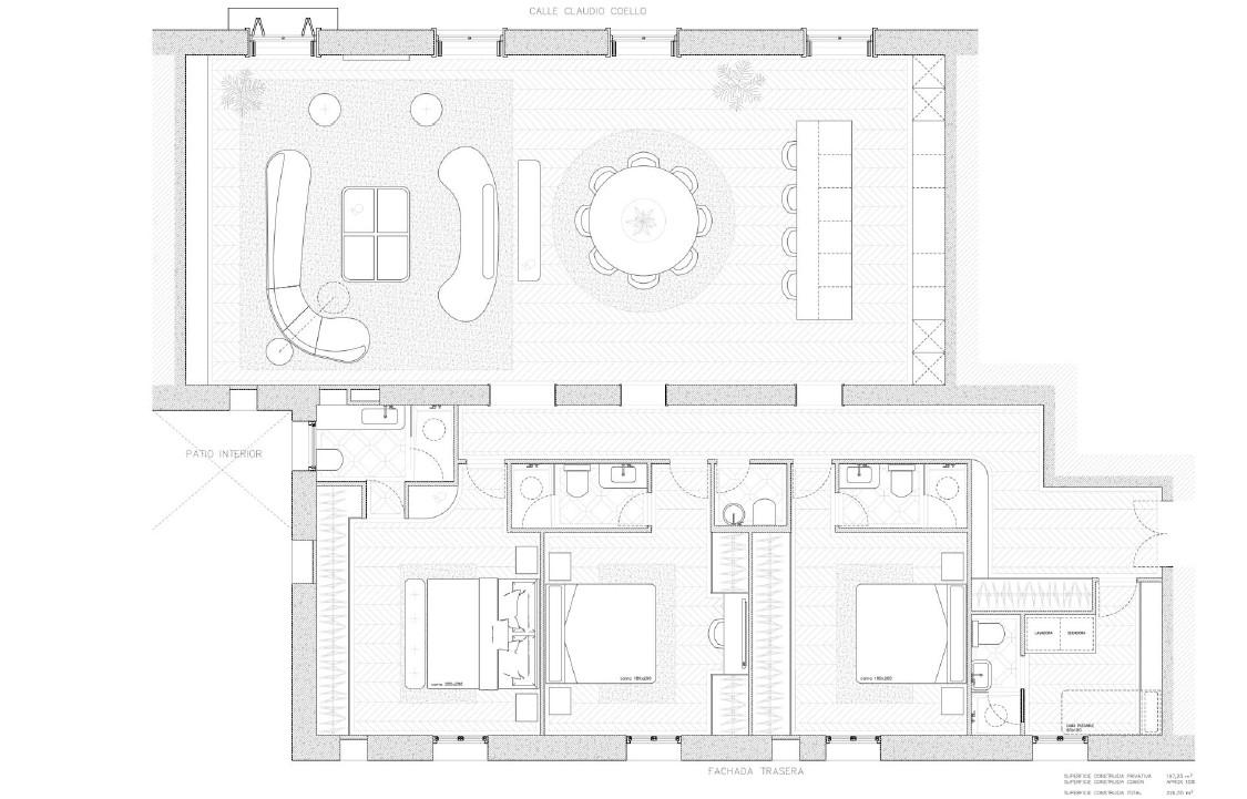
Esta magnífica vivienda de 226 metros cuadrados representa una oportunidad única para disfrutar de elegancia, amplitud y luminosidad en una de las zonas más codiciadas de Madrid.
Situado en una tercera planta izquierda, el piso recibe con un amplio hall de entrada que da paso a una cuidada distribución.
La propiedad cuenta con cinco dormitorios, todos ellos con baño en suite, ofreciendo máxima privacidad y confort.
La zona principal de cocina y salón, totalmente equipada, se abre al exterior a través de tres balcones con vistas a la calle, aportando luz natural y carácter señorial a la estancia.
Un hogar que combina ubicación privilegiada, funcionalidad y distinción.
Convertimos Sueños en Hogares




