DIZA Consultores les presenta este lienzo en blanco con propuesta por parte de la propiedad en Claudio Coello. En una de las zonas más tranquilas del Barrio Salamanca.
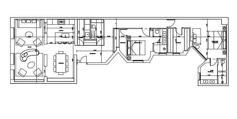
En la tercera planta de este edificio , se encuentra este luminoso piso de 149 metros cuadrados.
Se trata de un piso a reformar con grandes posibilidades.
El salón es la zona protagonista de la vivienda. Se trata de una estancia diáfana, muy luminosa, con cocina y comedor integrados.
El piso consta con la posibilidad de 2 o 3 dormitorios con baño en suite. Ambas propuestas cuentan con aseo de cortesía y lavandería.
El barrio Salamanca se trata de una de las zonas más lujosas y con mejor calidad de vida de Europa. Gracias a la amplia oferta gastronómica, cultural y comercial, se trata de una formidable zona donde vivir e invertir.
Estaremos encantados de atenderle.
DIZA Consultores Inmobiliarios
Inmobiliaria de lujo en Madrid especializada en comprar, vender y alquilar pisos en las zonas premium de Madrid: Barrio de Salamanca, Almagro, Chamartín, Retiro, Pozuelo, Aravaca, Boadilla.
Convertimos Sueños en Hogares




