DIZA Consultores presenta esta magnífica vivienda con una cuidada distribución y un diseño funcional, perfecta para quienes buscan confort y elegancia en el corazón de la ciudad.
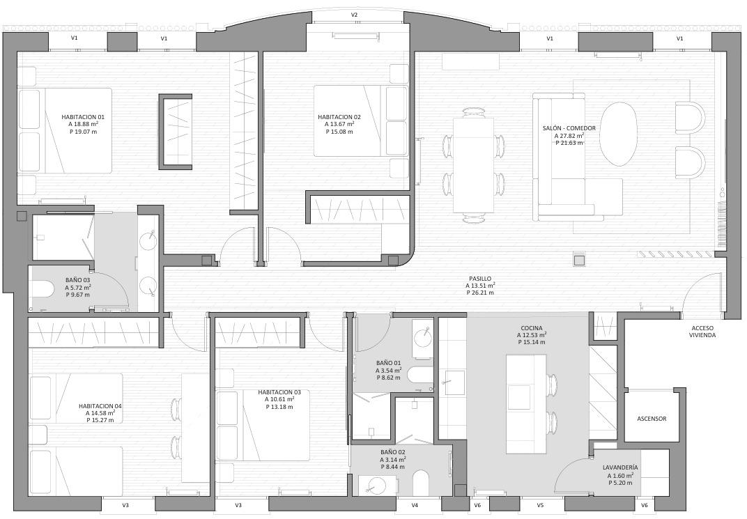
La zona social se compone de un amplio salón-comedor de más de 4 metros de ancho, con espacio diferenciado para zona de estar y comedor, conectado directamente con una cocina abierta de línea moderna y completamente equipada.
La zona privada alberga dos amplios dormitorios dobles, ambos con baño en suite y armarios empotrados. El dormitorio principal cuenta con una superficie generosa y orientación luminosa, mientras que el segundo dormitorio ofrece un ambiente íntimo y acogedor.
La vivienda dispone además de un baño de cortesía y amplios armarios distribuidos estratégicamente, optimizando cada metro cuadrado.
Un piso pensado para disfrutar de la comodidad y el diseño contemporáneo, con materiales de alta calidad y una distribución ideal tanto para vivienda habitual como inversión. Actualmente se encuentra alquilado hasta julio del 2026 en 2700€
Para mas información escríbenos.
Convertimos Sueños en Hogares




