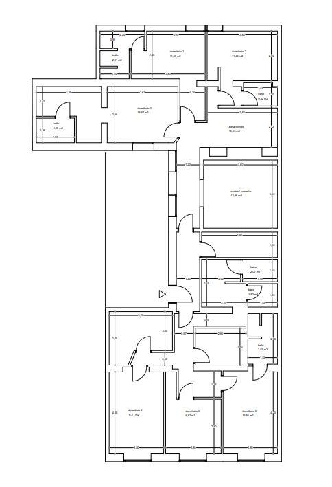
DIZA Consultores presenta amplia y luminosa primera planta que fue completamente reformada en el año 2016, combinando acabados modernos con una distribución funcional ideal tanto para vivienda a reformar como para inversión.
La propiedad cuenta con 6 habitaciones, cada una de generosas dimensiones y con excelente entrada de luz natural. Cuatro de las habitaciones disponen de baño en suite, lo que ofrece un alto nivel de confort y privacidad. Además, la vivienda incluye dos baños adicionales de uso privado, asignados a las habitaciones restantes, completando un total de 6 baños, todos ellos reformados con materiales de calidad y estilo contemporáneo.
La distribución está pensada para optimizar el espacio, permitiendo una convivencia cómoda y organizada. La reforma incluye instalaciones eléctricas y de fontanería actualizadas, así como suelos, carpintería y ventanas renovadas para mejorar el aislamiento térmico y acústico.
Una oportunidad única en el mercado, ideal para quienes buscan un espacio amplio, moderno y listo para entrar a vivir.
Convertimos Sueños en Hogares




