DIZA Consultores les presenta este magnífico piso en un edificio señorial con techos altos listo para reformar en la mejor zona de Madrid, junto a la calle Serrano en el Barrio Salamanca.
En una ubicación privilegiada del Barrio de Salamanca, encontramos este elegante piso de 245 metros cuadrados, ubicado en un edificio clásico y muy representativo.
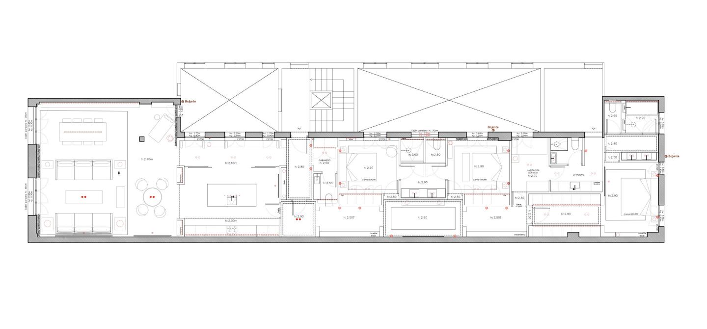
Ubicada en una tercera planta con excelente altura y abundante luz natural, la propiedad cuenta con una distribución óptima. En la zona social encontramos un amplio salón-comedor orientado al sur, con grandes ventanales que permiten la entrada de luz natural. La cocina de diseño abierto está equipada con muebles de alta gama y un funcional desayunador. Además, cuenta con un aseo de cortesía.
La zona de descanso se compone de tres habitaciones dobles, todas con baño en suite, diseñadas para maximizar la comodidad y privacidad. La propiedad ofrece aire acondicionado y calefacción por suelo radiante, asegurando una temperatura ideal durante todo el año. Los techos altos de más de 3 metros y la ausencia de muros de carga brindan un amplio margen para personalización o rediseño.
El piso actualmente se encuentra en estado de reforma en 2.955.000€, precio con obra más mobiliario 3.365.504€
El Barrio de Salamanca, es reconocido como una de las zonas más lujosas de Europa, combinando una oferta gastronómica de primer nivel, boutiques de lujo, y una rica vida cultural. La propiedad se encuentra entre las calles Hermanos Bécquer y Serrano, cerca de la embajada de Estados Unidos, con excelente conectividad mediante transporte público y fácil acceso a las principales arterias de la ciudad.
DIZA Consultores Inmobiliarios
Inmobiliaria de lujo en Madrid especializada en la compra, venta y alquiler de pisos en las zonas premium: Barrio de Salamanca, Almagro, Chamartín, Retiro, Pozuelo, Aravaca y Boadilla.
Convertimos Sueños en Hogares.




