DIZA Consultores presenta un espectacular piso para reformar en Monte Esquinza junto a Colón.
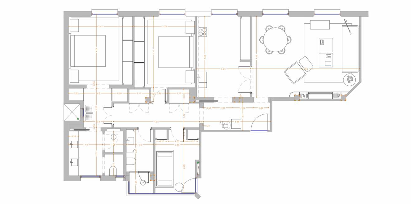
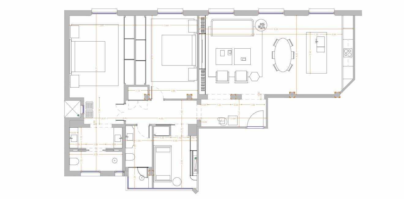
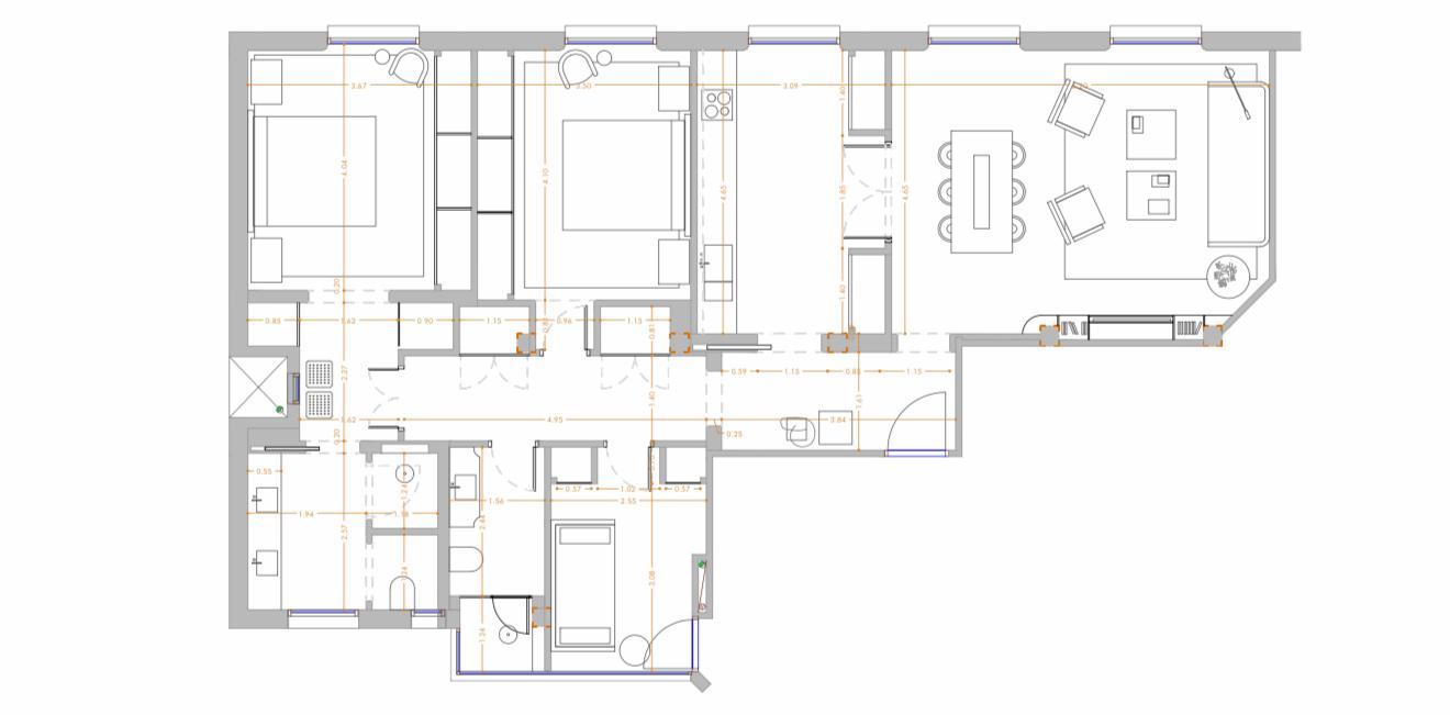
En la quinta planta de un edificio construido a principios del siglo XX se encuentra este singular piso de 164 metros cuadrados demolido y con muchas posibilidades de reforma.
El piso es muy luminoso, gracias a la altura, grandes huecos a la calle y orientación.
La zona de noche se plantea en dos o tres dormitorios, cada una con su cuarto de baño y un aseo de cortesía.
Uno de los mayores atractivos del edificio es que tiene una maravillosa terraza en la azotea. Esta es de uso comunitario y tiene una cuidada selección de plantas.
El Barrio de Almagro se trata de una de las zonas más lujosas y con mejor calidad de vida de Europa. Gracias a la amplia oferta gastronómica, cultural y comercial, se trata de una formidable zona donde vivir e invertir.
Estaremos encantados de atenderle.
DIZA Consultores Inmobiliarios




