DIZA Consultores presenta un espectacular piso haciendo esquina con siete balcones en la mejor zona de Barrio Salamanca.
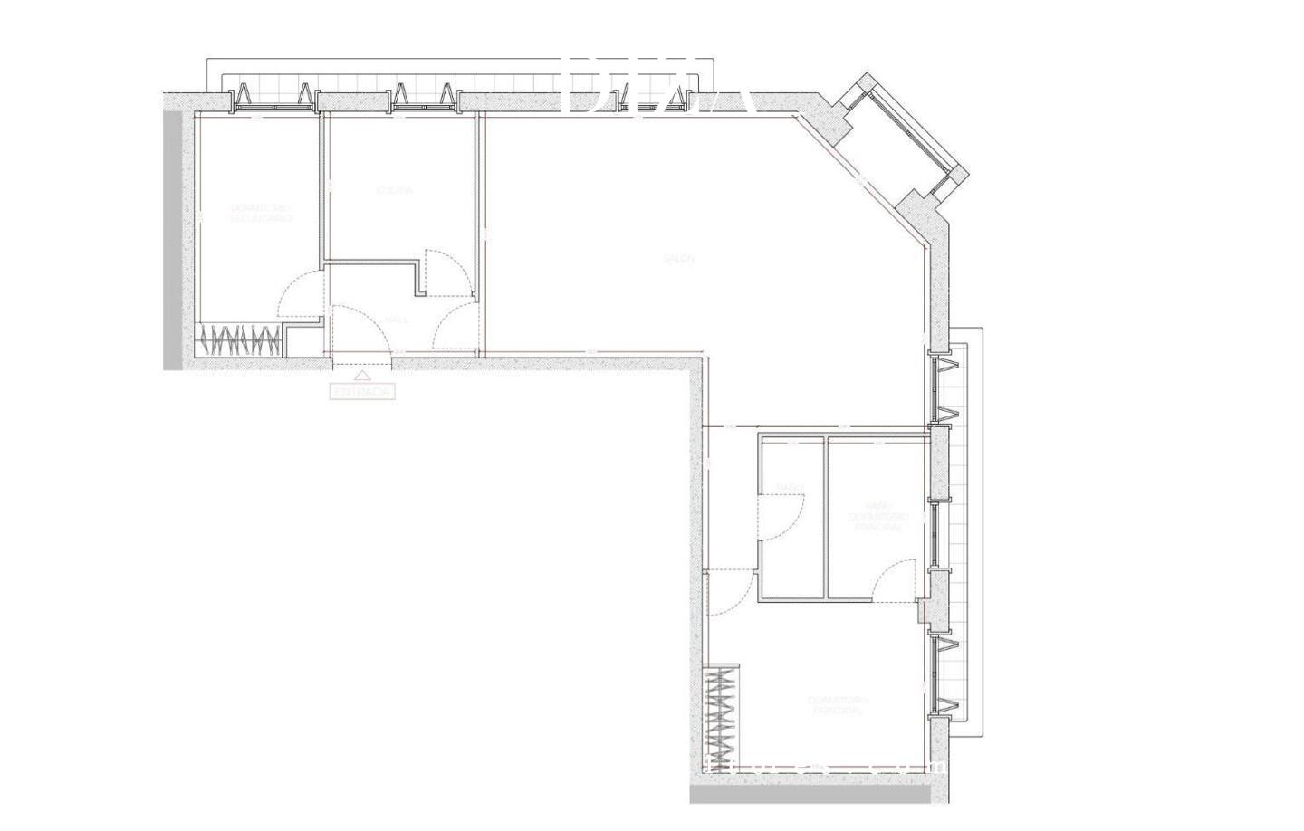
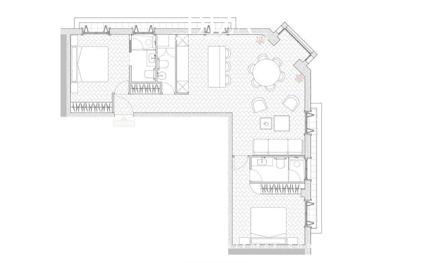
En la segunda planta de un edificio representativo construido a principios del siglo XX, se encuentra este luminoso piso de 99 metros cuadrados con siete balcones a la calle.
Todas las estancias del inmueble son exteriores y muy luminosas ya que todas tienen balcón a la calle. La vivienda cuenta con una excepcional cualidad; no tiene pasillos ni muros de carga, algo singular en este tipo de propiedades.
La zona de noche se compone de dos amplios dormitorios, también cuenta con dos baños. Los techos altos hacen que todas las estancias del piso, incluyendo las habitaciones, tengan un efecto de amplitud y luminosidad.
El inmueble dispone de una amplia cocina independiente, luminosa y práctica.
La propiedad se encuentra en un imponente edificio de fachada señorial, el cual ha sido completamente rehabilitado, al igual que su imponente portal.
El Barrio Salamanca se trata de una de las zonas más lujosas y con mejor calidad de vida de Europa. Gracias a la amplia oferta gastronómica, cultural y comercial, se trata de una formidable zona donde vivir e invertir.
Estaremos encantados de atenderle.
DIZA Consultores Inmobiliarios
Inmobiliaria de lujo en Madrid especializada en comprar, vender y alquilar pisos en las zonas premium de Madrid: Barrio de Salamanca, Almagro, Chamartín, Retiro, Pozuelo, Aravaca, Boadilla.
Convertimos Sueños en Hogares




