DIZA Consultores les presenta este magnifico piso en una de las zonas más codiciadas de Madrid, el barrio de Ibiza, esta propiedad recién reformada y completamente amueblada ofrece una oportunidad inmejorable tanto para inversión como para uso residencial.
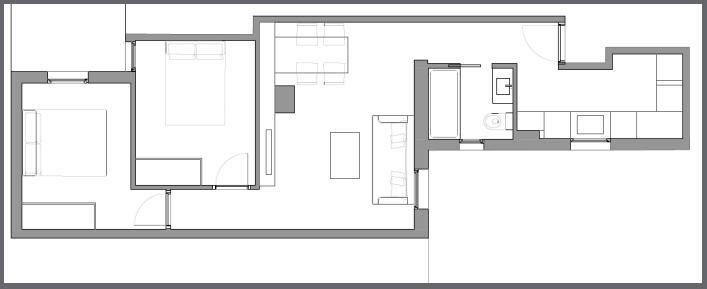
Con una superficie de 63 m², el inmueble se distribuye de manera funcional y moderna, destacando por su luminosidad y ubicación en el vibrante parque del retiro de la ciudad.
En la zona social, encontramos un salón acogedor. La cocina está equipada con todo lo necesario para hacer de esta una estancia muy práctica y funcional.
El piso consta de un amplio dormitorio principal, un baño completo y un encantador segundo dormitorio, zona de estudio o despacho.
La vivienda disfruta de abundante luz natural durante todo el día, lo que permite aprovechar al máximo su ubicación privilegiada.
Este piso está listo para entrar a vivir desde el primer día, completamente amueblado y equipado, lo que garantiza una experiencia de confort y comodidad inmediata.
No deje pasar la oportunidad de adquirir este maravilloso inmueble en pleno centro de Madrid, ideal para aquellos que buscan un hogar exclusivo en uno de los enclaves más dinámicos y deseados de la capital.
DIZA Consultores Inmobiliarios. Inmobiliaria de lujo en Madrid.
Especializados en comprar, vender y alquilar pisos en las zonas premium de la ciudad: Barrio de Salamanca, Almagro, Chamartín, Retiro, Pozuelo, Aravaca y más.
Convertimos Sueños en Hogares.




