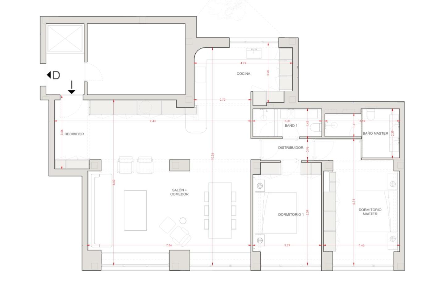
DIZA consultores les presenta amplia oficina con posibilidad de cambio de uso a vivienda, situada en una finca representativa. Con una superficie construida de 183 m², este espacio destaca por su luminosidad y amplitud, gracias a sus grandes ventanales y su excelente orientación sur, que garantiza luz natural durante todo el día.
El inmueble ofrece grandes posibilidades de reforma, permitiendo una distribución moderna y funcional. Existe la posibilidad de proyectar una vivienda de alto nivel con 2 amplios dormitorios, 3 baños, y salón-comedor de concepto abierto, ideal para disfrutar de los espacios diáfanos y la luz.
Toda la propiedad es exterior, lo que aporta ventilación cruzada y una sensación de amplitud única. Su configuración actual permite una adaptación versátil, tanto para uso residencial como para otros fines representativos o profesionales.
En definitiva, una propiedad singular con un enorme potencial de transformación, perfecta para quienes buscan crear una vivienda exclusiva y luminosa en un enclave único.
Convertimos Sueños en Hogares




