Diza consultores les presenta este piso reformado a estrenar en pleno corazón del Barrio de Cortes.
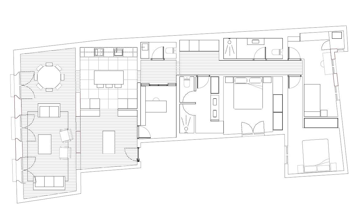
Toda la vivienda ha sido reformada con calidades y detalles de lujo. Cuenta con una superficie de 177 metros cuadrados, 3 dormitorios y 2 baños completos, con dormitorio principal en suite y aseo de cortesía
El salón comedor con 3 balcones exteriores, cocina con electrodomésticos de alta gama. Techos altos, suelos de tarima de alta calidad, armarios empotrados,. Aire acondicionado y calefacción individual. Debido a su orientación oeste y distribución posee una luz envidiable.
Inmobiliaria de lujo en Madrid ubicada en el Barrio de Salamanca especializada en comprar, vender y alquilar pisos en Madrid
Convertimos Sueños en Hogares




