DIZA Consultores presenta exclusivo piso en esquina ubicado en la calle Hermosilla, en la prestigiosa zona de Goya, dentro del emblemático barrio de Salamanca.
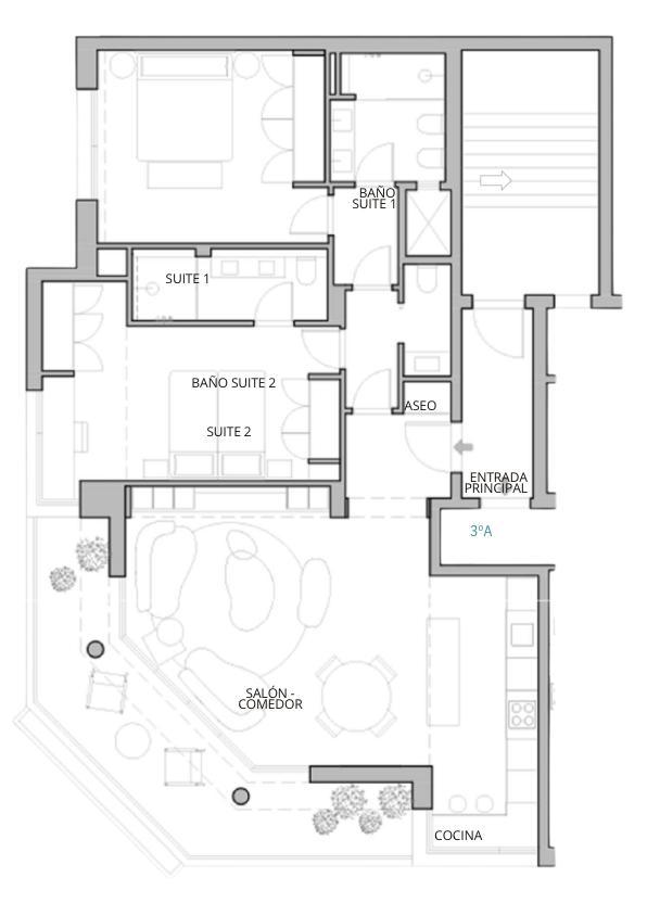
La vivienda destaca por una zona social muy luminosa, favorecida por su situación en esquina, que le permite disfrutar de una magnífica entrada de luz natural durante todo el día. El salón-comedor se abre a una gran terraza, ideal para disfrutar del exterior, y cuenta con un amplio ventanal que potencia la sensación de amplitud y luminosidad.
La zona de descanso se compone de dos dormitorios en suite, ambos exteriores, que ofrecen confort y privacidad, además de un aseo de cortesía que completa la distribución.
Una propiedad única en una de las zonas más demandadas de Madrid, perfecta para quienes buscan luz, espacio y una ubicación privilegiada.
Convertimos Sueños en Hogares




