Elegancia contemporánea en el corazón de Malasaña
DIZA Consultores presenta esta exclusiva vivienda ubicada en una de las zonas más vibrantes y cotizadas del centro de Madrid: el barrio de Malasaña.
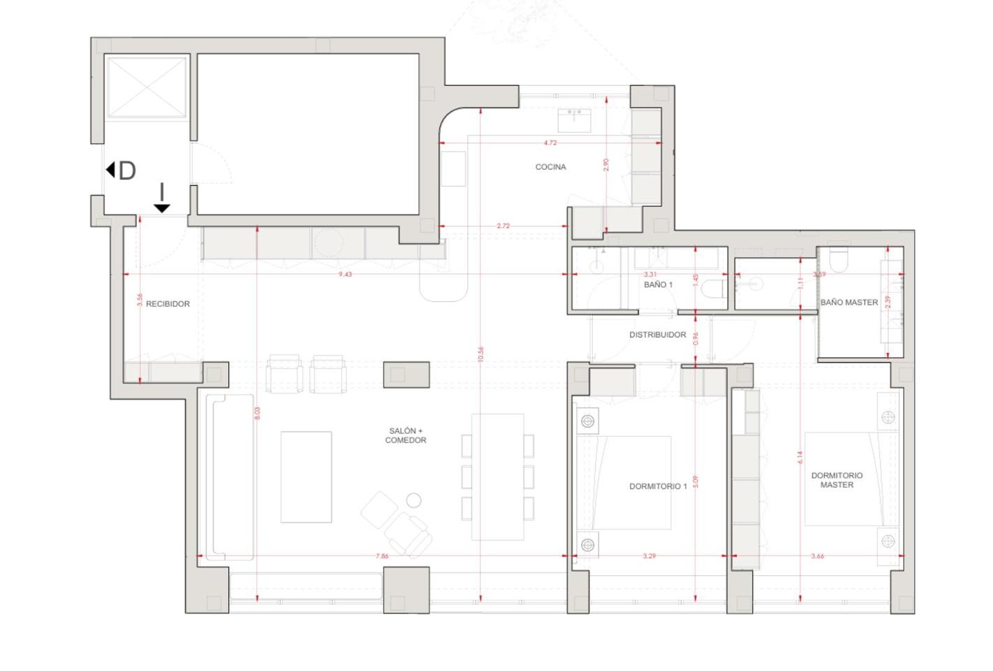
Situada en una primera planta en una finca clásica con encanto, esta propiedad de 107 m² ha sido completamente reformada con calidades de lujo, ofreciendo un equilibrio perfecto entre diseño moderno y confort.
Desde su amplio hall de entrada, se accede a un elegante salón-comedor con cocina integrada, donde destaca una espectacular isla central, nevera americana y electrodomésticos AEG de alta gama. Un espacio perfecto para disfrutar tanto del día a día como de reuniones sociales, bañado por la luz natural que entra a través de sus dos balcones exteriores.
La vivienda cuenta con dos dormitorios bien distribuidos, uno de ellos con baño en suite, y un segundo baño completo que da servicio a la zona social y al dormitorio secundario. Todos los espacios destacan por sus techos de 2,75 metros, que aportan amplitud y elegancia, así como por su cuidada carpintería en puertas de suelo a techo, que potencia la sensación de continuidad y sofisticación.
Como valor añadido, se ofrece la posibilidad de adquirir una plaza de garaje en finca cercana por 45.000 €, una ventaja indiscutible en esta codiciada ubicación.
Una oportunidad única para vivir o invertir en el epicentro cultural y creativo de Madrid, rodeado de boutiques independientes, gastronomía de autor y una oferta cultural inigualable.
DIZA Consultores Inmobiliarios
Especialistas en viviendas singulares en las mejores zonas de Madrid.




