DIZA Consultores les presenta ático con vistas despejadas en edificio clásico listo para reformar en Goya.
En una sexta planta de un edificio construido a principios del siglo XX, se encuentra este ático con terraza de 17 metros cuadrados con vistas.
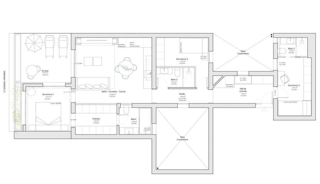
La vivienda está en estado de reforma total, con muchas posibilidades para reformarla al gusto de cada uno.
Una de las posibilidades es dejar el salón diáfano, abierto al comedor y cocina, integrando la terraza. La zona de noche se puede convertir en tres amplios dormitorios cada uno con su propio baño. El dormitorio principal puede ser exterior, con un gran vestidor y baño con lavabo doble.
La ubicación de la propiedad es fantástica, en pleno Barrio de Salamanca.
El Barrio de Salamanca se trata de una de las zonas más lujosas y con mejor calidad de vida de Europa. Gracias a la amplia oferta gastronómica, cultural y comercial, se trata de una formidable zona donde vivir e invertir.
DIZA Consultores Inmobiliarios.
Inmobiliaria de lujo en Madrid especializada en comprar, vender y alquilar pisos en las zonas premium de Madrid: Barrio de Salamanca, Almagro, Chamartín, Retiro, Pozuelo, Aravaca, Boadilla.
Convertimos Sueños en Hogares.




